Good size 3 bed, 3 bath, solarium, pool and close to everything. Santiago de la Ribera and San Javier
Ref. 4683 369,900

Good size 3 bed, 3 bath, solarium, pool and close to everything. Santiago de la Ribera and San Javier 4683

SANTIAGO DE LA RIBERA Get directions to this property
  • Built area: 114.00 m2
  • Useful: 110.00 m2
  • 3 Dormitorios
  • 3 Cuartos de baño

Descripción

Only a few left. Really good location as in fair walking distance to everything. Santiago de la Ribera is fantastic seaside town.

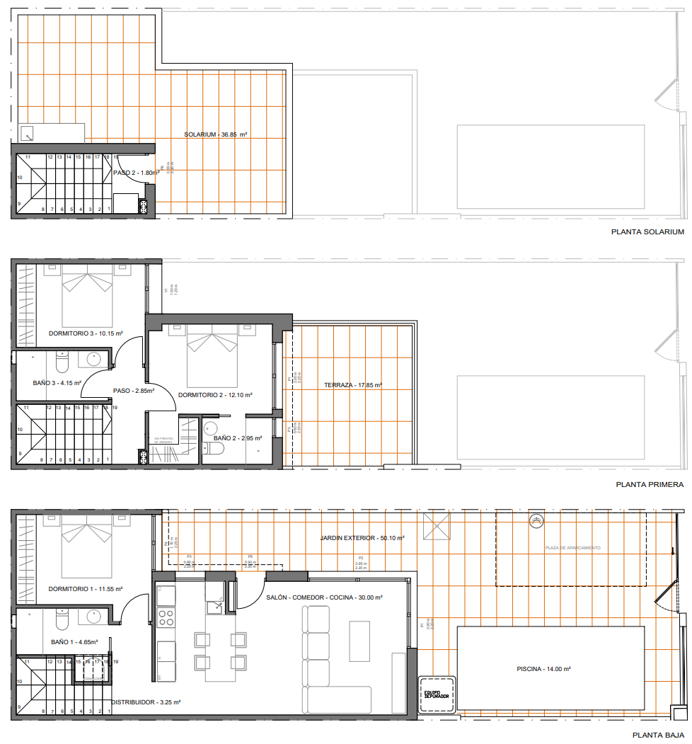
The property consist of 3 bed, 3 bath., garden, 14 m2 pool, 37 m2 solarium and parking space on own plot.

On the ground floor you have the 30 m2 lounge with open kitchen, one of the bedrooms and one of the bathrooms. Here is also the staircase to the next floor.
Lounge got large glass doors to the garden. Kitchen has a nice breakfast bar and comes with all white goods.

First floor got the 2 other bedrooms and 2 of the 3 bathrooms. The master bedroom got walk-in wardrobe, en-suite bathroom and doors to the 18 m2 1st floor terrace. This floor also got the staircase to the solarium.

At the top of the staircase is the door to the 37 m2 solarium which comes with a summer kitchen prepared for washing machine and a mini-fridge.

All bedrooms got build-in wardrobes.

Pool comes with outdoor shower.

Electric blinds, fiber optic installation and intercom are standard as well.

Pre-installation for ducted A/C and electric car charger.

Summary:

* Good location.
* 3 bed, 3 bath.
* Master bed with en-suite bathroom, walk-in wardrobe and 18 m2 own terrace.
* 37 m2 solarium with summer kitchen.
* Kitchen with nice breakfast bar and all white goods.
* Electric blinds.
* Intercom
* 14 m2 pool with shower.
* Parking on own plot.
* Pre-installation for ducted A/C- heating.
* Pre-installation for electric car charger.

And a bit about distances:

* Airports: Murcia 30 minutes and Alicante 55 minutes.
* Beaches from just over 1000 m. So approx 15 minutes walk, on a bike probably 5 minutes. 3 minutes by car.
* Restaurants, supermarkeds, pharmacy etc,, from 500 m.
* Shopping centre 5 minutes drive.
* Golf, from 10 minutes drive.
* San Javier 5 minutes, Los Alcazares 10 minutes, Cartagena 25 minutes and Murcia City 35 minutes.

For more info or arranging a viewing of property and area please contact Steen on +34 621 20 88 32 (also WhatsApp)







Detalles de la propiedad

  • Escribe: Pareado
  • Dormitorios: 3
  • Cuartos de baño: 3
  • Orientación:
  • Piscina:
  • Zona: 114.00 m2
  • Tamaño de la parcela: 0.00 m2

Comodidades

  • Built-in wardrobe
  • Balcony
  • White goods
  • Parking
  • Private pool
  • Pre-installation air con
  • Solarium
  • Garden

Floor Plans

Murcia Dreams

MUDARTE A LO QUE NOS MOVIÓ

Nuestro Equipo Exclusivo de 6 Profesionales de la Industria con una experiencia combinada de 162 años, todos residentes en Murcia, 'SE ASEGURARÁN DE HACERLO SU REALIDAD'.

"VUELVE A CASA A LA VERDADERA ESPAÑA"

Boletin informativo

Mantenerse al día

Nuestro nuevo diseño de sitio web le facilita aún más la elección de la propiedad adecuada. Para obtener más información directamente en su bandeja de entrada, suscríbase a nuestro emocionante boletín.

Lemon icon