SORRY, THIS PROPERTY HAS BEEN SOLD

MurciaDreams.com

info@murciadreams.com

+34 868 089 748

CONTACT THE AGENT

Rupert W. Gehmacher from Murcia Dreams
Rupert W. Gehmacher

rupert@murciadreams.com

Ref. 4212 385,000

TOP FLOOR PENTHOUSE 3-BED OASIS BEACH APARTMENT (MAR DE CRISTAL)

MAR MENOR (SOUTH)
  • 0.00 m2
  • 3 Bedrooms
  • 2 Bathrooms

Description

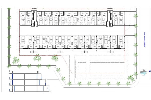
Indulge in coastal living at Oasis Beach Club, an exclusive private residential complex in Mar de Cristal, graced by vast garden areas and inviting community pools. These modern-style apartments feature open spaces, large windows, and a kitchen that seamlessly integrates with the living room. The master bedroom boasts a dressing room, accompanied by two bathrooms.

**Construction Details:**
- Staggered construction for optimal sunlight and views
- Four types of apartments: Ground Floor, First Floor, Second Floor and Penthouses
- Superb quality materials including top-quality porcelain stoneware, aluminium metal carpentry with thermal break, fully furnished designer kitchen with appliances, pre-installation of air conditioning, and more.

**Privileged Location:**
Nestled in Mar de Cristal, offering more than 300 days of sunshine and excellent highway connections to coastal towns and cities like Cartagena and Murcia. International airports in Murcia and Alicante are conveniently accessible.

**Key Features:**
- East Facing
- Elevator to all levels
- Private Gardens
- Communal Pool
- Reinforced security doors

**Completion and Delivery:**
The first phase is well underway, with the first keys scheduled for delivery in June 2024.

**Location:**
Situated in Mar de Cristal, just a 5-minute stroll to the beach and picturesque promenade, offering breathtaking views of the Mar Menor and La Manga.

**Contact Us:**
To explore special offers and unique deals, contact us directly. Follow us on Facebook/Instagram for exclusive offers on new build properties and for more information about our premium move-in services.

**Arrange a Viewing:**
Contact Sean at Murcia Dreams to arrange a viewing today!!
Email: rupert@murciadreams.com
Móvil: +34 619 039182
Office: +34 868 619 319
Address: CC Al-Kasar, Condado de Alhama, 30840, Alhama de Murcia

Discover the epitome of luxury living at Oasis Beach Apartments – where modern elegance meets coastal tranquillity.

Property Details

  • Type: Apartment
  • Bedrooms: 3
  • Bathrooms: 2
  • Orientation: Suroeste
  • Swimming pool: Yes
  • Area: 0.00 m2
  • Plot size: 113 m2

Amenities

  • Built-in wardrobe
  • Heating
  • Water deposit
  • White goods
  • Telephone line
  • Bright
  • Electricity
  • Parking
  • Communal pool
  • Pre-installation air con
  • Safety door
  • Solarium
  • Terrace
  • Storage
  • Gated community
  • Garden
Murcia Dreams

MOVE TO WHAT MOVED US

Our Exclusive Team of 6 Industry Professionals with a combined experience of 162 years, all residing in Murcia will ‘ENSURE TO MAKE IT YOUR REALITY’.

“COME HOME TO REAL SPAIN”

Newsletter

Keep up to date

Our brand new website design makes it even easier for you to choose the right property. For more information delivered right to your inbox, please sign up for our exciting newsletter.

Lemon icon