LAST ONE Frontline villa - stunning views 3 bed, 3 bath villa with private pool and solarium on Roda Golf
Ref. 4544 799,000

LAST ONE Frontline villa - stunning views 3 bed, 3 bath villa with private pool and solarium on Roda Golf 4544

  • Built area: 150.00 m2
  • Plot: 300 m2
  • Useful: 140.00 m2
  • 3 Bedrooms
  • 3 Bathrooms

Description

Really well layout villa, large lounge, nice feature staircase. Amazing views, as front line. 27 m2 sunny solarium on first floor. Private pool.

Ground floor consist of really good size lounge (44 m2) with open plan kitchen. Kitchen comes with all white goods. The shape and size of the lounge makes is easy to create both a dinning and sofa area on top of the bar at the kitchen island. Lounge got acces directly to the garden/pool area next to the golf course. Ground floor also got 1 of the 3 bedrooms and 1 of the 3 bathrooms.

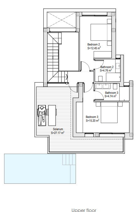
A nice feature staircase, from the lounge take you to first floor where you have to 2 other bedroom, 2 other bathroom and 27 m2 solarium with access either through the hallway or directly from the master bedroom.

The master bedroom got en-suite bathroom, large build-in wardrobes and access to the solarium.

All bedrooms got build-in wardrobes.

There are pre-installation for ducted A/C and heating on both floors.

Hot water, electric via adjustable boiler and 1.5 kw photovoltaic solar panels.

Pre-installation for electric car charger.

Summary:

* Front line. Amazing views.
* 3 bedrooms (Master one with e-suite and direct access to the solarium.
* 3 bathrooms.
* 27 m2 sunny solarium. Stunning views
* Private pool.
* Large lounge - 43 m2.
* All white goods included.
* Build in wardrobes in the bedrooms.
* Off road parking.
* Outside storage.
* Pre-installation for ducted A/C ( one for each floor).
* Pre-installation for electric car charger.

Roda golf is a really nice 18 holes course, it got a nice big clubhouse with restaurant, bar, golf shop etc.. Roda town is just a walk away and got a selection of restaurants and a supermarket. Los Alcazares (with everything, including selection of beaches) is in walkable distance and approx 5 min by car.

Taxi rank on the resort.

And a bit about distances:

Supermarkets, 3 in approx 5 min..by car/bi-cycle.
Beach also approx 5 min, by car or bi-cycle.
Shopping centre approx 10 min..
San Javier 5-10 min..
Cartagena 20 min..
Murcia City 30-35 min.
Airports: Murcia 25 min., Alicante 55 min..

For more information please contact our area agent Steen Greve on +34 621 208832 (Also WhatsApp)


Property Details

  • Type: Villa
  • Bedrooms: 3
  • Bathrooms: 3
  • Orientation:
  • Swimming pool: Yes
  • Area: 150.00 m2
  • Plot size: 300.00 m2

Amenities

  • Built-in wardrobe
  • White goods
  • Parking
  • Patio
  • Private pool
  • Pre-installation air con
  • Front line
  • Solarium
  • Terrace
  • Storage
  • Gated community
  • Garden

Floor Plans

Murcia Dreams

MOVE TO WHAT MOVED US

Our Exclusive Team of 6 Industry Professionals with a combined experience of 162 years, all residing in Murcia will ‘ENSURE TO MAKE IT YOUR REALITY’.

“COME HOME TO REAL SPAIN”

Newsletter

Keep up to date

Our brand new website design makes it even easier for you to choose the right property. For more information delivered right to your inbox, please sign up for our exciting newsletter.

Lemon icon